Extra - zarządzanie najmem
Skonaktuj się z nami:
+48 608 137 543
Strona główna
Menu
Dom wolnostojący Kowale
Chcę kupić
Numer oferty: H006358
1850000 zł
Powierzchnia całkowita:380.00m2
Ilość pokoi:5
Lokalizacja:Kolbudy
Data dodania:29.10.2025
Dane podstawowe
RynekWtórny
Rok budowy2005
Powierzchnia380.00 m2
Powierzchnia działki986.00 m2
Liczba poziomów2
Liczba pokoi5
Stan technicznyWysoki standard
OgrzewanieGazowe
BalkonBalkon
GarażGaraż
PiwnicaTak
Media - przyłącze wodyW budynku
Media – przyłącze energetyczneW budynku
Media – przyłącze gazuW budynku
Odprowadzenie ściekówTak
Lokalizacja
WojewództwoPomorskie
Powiatgdański
GminaKolbudy
MiejscowośćKowale
Dzielnica / osiedle
UlicaSadowa
Opis nieruchomości

Kowale – komfortowy dom z możliwością prowadzenia działalności gospodarczej

Trzykondygnacyjny dom jednorodzinny o powierzchni całkowitej 380 m2 usytuowany na działce 986 m2, z możliwością prowadzenia działalności gospodarczej na wydzielonej powierzchni 133 m2

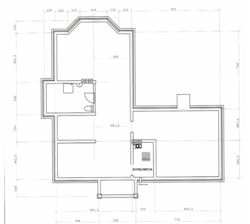
I kondygnacja – dobrze doświetlona piwnica o wysokości 2,7 m, do której istnieje możliwość wykonania indywidualnego wejścia, odłączenia tej kondygnacji od części mieszkalnej i prowadzenia działalności gospodarczej na powierzchni 133 m2

  1. Sala nr 1- 40 m2
  2. sala nr 2 - 80 m2
  3. łazienka nr 1 z kabiną prysznicową (pralka; WC; umywalka) - 6 m2
  4. sauna - 3 m2
  5. pomieszczenie naturalnie chłodne (nieizolowane termicznie)  - 2 m2
  6. kotłownia (piec Viessmann z zasobnikiem na c.w.u. 200 l.) - 2 m2  

II kondygnacja - parter

  1. salon z wyjściem na taras - 40 m2
  2. kuchnia (oddzielna z szerokim wejściem przez drzwi suwawne) - 12 m2
  3. łazienka nr 2 z kabiną prysznicową (WC; umywalka) - 4 m2
  4. pralnia/suszarnia (pralka; szuszarka) - 1,5 m2
  5. gabinet - 11 m2
  6. przedsionek - 2 m2
  7. korytarz - 2 m2
  8. garaż dwustanowiskowy dla samochodów (max 2 x 10 ton) - 36 m2

II kondygnacja – poddasze

  1. sypialnia - 15 m2 (podłoga 18 m2) z balkonem na stronę wschodnią
  2. garderoba - 1,5 m2
  3. salon - 40 m2 (podłoga 42 m2)
  4. salon łazienkowy (łazienka nr 3) wanna z hydromasażem, kabina huppe, 2 x umywalka, WC; bidet - 12 m2
  5. łazienka nr 4 (wanna; WC; umywalka) - 4 m2
  6. sypialnia nr 2 / pokój dziecięcy - 12 m2
  7. korytarz - 9 m2

+ całkowicie wykończony strych wys. 1,4 m – ocieplony, na podłodze OSB wyłożone wykładziną dywanową, zainstalowane oświetlenie, skosy - płyta K-G wykończona gładzią i malowana na kolor biały,    

+ częściowo zadaszony taras od strony południowej i wbudowanym grillem z odprowadzeniem spalin poprzez wysoki komin wyprowadzony na połaci dachowej

Standard wykończenia:

  1. Okna: profile PCV 3 komorowe, wyposażone w rolety antywłamaniowe z napędem elektrycznym
  2. Drzwi zewnętrzne: antywłamaniowe firmy Dierre wzmocnione i poszerzone – produkcja we Włoszech na indywidualne zamówienie + dodatkowe od zewnątrz - stylowe z podświetlanymi przeszkleniami,
  3. Bramy garażowe: Firmy Hormann ocieplone - możliwość wjazdu podwyższonym samochodom dostawczym.
  4. Drzwi wewnętrzne: drewniane - wykonywane na specjalne zamówienie (manufaktura) 
  5. Podłogi:
  6. pokoje – parkiet wysokiej klasy na wylewkach samopoziomujących, materiały: buk, dąb, dąb czerwony,
  7. kuchnia, hol, przedsionek, łazienki – ogrzewanie podłogowe -  wysokogatunkowa terakota,
  8. piwnica, garaż, kotłownia, sauna – terakota na całej powierzchni,
  9. strych – płyta OSB wyłożona wykładziną dywanową,
  10. Ściany:
  11. pokoje, hol, przedsionek – tynki wapienno cementowe + gładzie gipsowe malowane wysokogatunkową farbą emulsyjną
  12. kuchnia – tynki wapienno cementowe + gładzie gipsowe malowane wysokogatunkową farbą emulsyjną + szklany pas nadblatowy
  13. łazienki – wysokogatunkowa glazura
  14. kotłownia – glazura do poziomu sufitu
  15. garaż – glazura do poziomu 1,5 m + gładzie malowane wysokogatunkową farbą emulsyjną do poziomu sufitu
  16. strych – płyta kartonowa gipsowa na stelażu (ocieplenie wełną mineralną grubości 25 cm), wykończona, szpachlowana i pomalowania farbą emulsyjną na kolor biały
  17. Schody wewnętrzne:
  18. z poziomu parteru do piwnicy – żelbetowe wykończone wysokogatunkową terakotą,
  19. z poziomu poddasza na poziom parteru – żelbetowe wykończone drewnem dębowym,
  20. Schody zewnętrzne i tarasy : żelbetowe wykończone gresem antypoślizgowym, stopnice ryflowane z „noskami” ,
  21. Odkurzacz centralny z rozprowadzeniem na całą powierzchnie domu (łącznie z garażem i pomieszczeniami piwnicznymi).

Technologia budowy:

  1. Fundamenty żelbetowe B-30 poszerzane w stosunku do projektu
  2. Stropy:
  3. pod garażem – żelbetowy o podwyższonej nośności – do 8 ton/miejsce postojowe
  4. w części mieszkalnej – ceramiczno żelbetowy system Leyer
  5. System drenarski (rura O 100mm + warstwy kamienia różnych frakcji + geowłóknina) otaczający budynek - znakomicie odprowadzający wody deszczowe,
  6. Ściany piwnic trójwarstwowe: bloczek betonowy 12 cm + styropian 8 cm + bloczek betonowy 24 cm + 2 x dysperbit + wysokogatunkowa papa termozgrzewalna
  7. Opaska przyziemna – styropian + cegła klinkierowa
  8. Ściany parteru – porotherm 38 cm + styropian 10 cm + tynk cienkowarstwowy silikatowy
  9. Ściany kolankowe wysokości 110 cm – porotherm 38 cm + styropian 10 cm + tynk cienkowarstwowy silikatowy
  10. Dach – wysokogatunkowa farba emulsyjna/gładź gipsowa/płyta kartonowo gipsowa/folia paroizolacyjna/stelaż stalowy/wełna mineralna 25 cm/folia paroprzepuszczalna/pustka/wentylacyjna/deskowanie/papa/łaty/kontrłaty/dachówka ceramiczna Ruppceramika.
  11. Kominy wentylacyjne – cegła pełna
  12. 10. Komin spalinowy – system kominowy ceramiczny leyer izolowany O 200mm
  13. 11. Podbitka o szerokości 110 cm wokół domu (umożliwia bezproblemowe chodzenie wokół domu w deszczowe dni) wykonana z impregnowanego drewna
  14. 12. Kondygnacja parter i poddasze wysokogatunkowa glazura + parkiet (dąb czerwony, buk)
  15. 13. Ściany: tynki wapienno cementowe z gładzią

 

Z projektem, na podstawie którego zrealizowano budowę domu, można zapoznać się na stronie internetowej biura projektowego ATRUM pod nazwą "KORAL"

UWAGA! Oryginalny projekt prezentuje dom niepodpiwniczony. Dom oferowany posiada powiększony garaż i pomieszczenia nad garażem oraz doprojektowaną  kondygnację podziemną o wysokości 2,70 m, którą można oddzielić od części mieszkalnej aby ją przeznaczyć na najem lub prowadzenie działalności gospodarczej.